Ideálny domov

Rodinný dom 9

Detaily Projektu

Ceny výstavby

  • Hrubá STAVBA: 81 800 €
  • HOLODOM: 142 000 €
  • DOM NA KĽúČ: 153 200 €

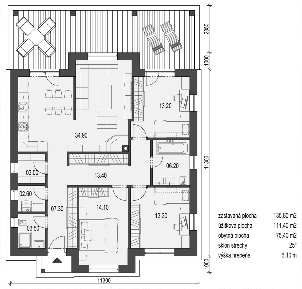
Popis projektu

Rodinný dom je vhodný pre viac člennú rodinu. Obývacia izba je spojená kuchynskou časťou. Z obývacej časti je priamy vstup na čiastočne prekrytú terasu. Nočnú zónu domu tvorí spálňa rodičov a dve veľké detské izby. Súčasťou spálne je šatník. Taktiež sa tu nachádza technická miestnosť s kotlom, práčkou a napríklad aj so sušičkou. Dom je navrhnutý ako ultranízkoenergetický čo výrazne šetrí náklady na energie.

Pôdorys projektu

Kontaktujte Nás

 

Beth-EL s.r.o.
Sokolníky 264, 951 46 PODHORANY

info@idealnydomov.sk

+421 907 519 995