Ideálny domov

Rodinný dom 3

Detaily Projektu

Ceny výstavby

  • Hrubá STAVBA: 85 400 €
  • HOLODOM: 146 200 €
  • DOM NA KĽúČ: 160 200 €

Popis projektu

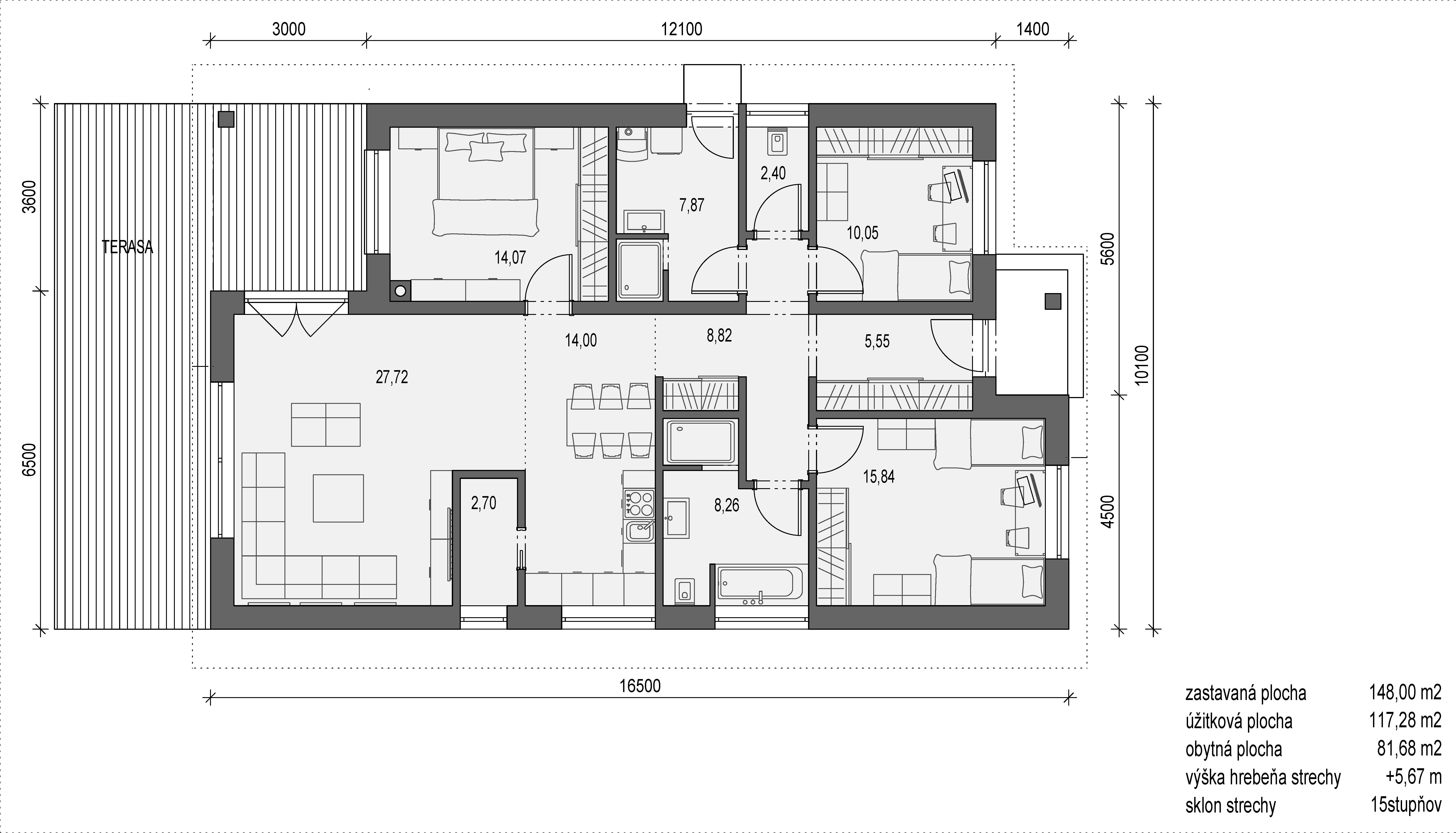
Rodinný dom je vhodný pre viac člennú rodinu. Obývacia izba je spojená s obývacou izbou. Z obývacej časti je priamy vstup na čiastočne prekrytú terasu. Nočnú zónu domu tvorí spálňa rodičov a dve veľké detské izby. Súčasťou spálne je samostatný šatník. Taktiež sa tu nachádza technická miestnosť s kotlom, práčkou a napríklad aj so sušičkou. Dom je navrhnutý ako ultranízkoenergetický čo výrazne šetrí náklady na energie.

Pôdorys projektu

Kontaktujte Nás

 

Beth-EL s.r.o.
Sokolníky 264, 951 46 PODHORANY

info@idealnydomov.sk

+421 907 519 995